Property Development / CAD technician work on construction site – 57 Exhibition Rd. London
The chance to work on a construction site was a fantastic opportunity. I worked closely with clients, a project manager and interior designers for this high end property development of several flats in Princes Gate in London SW7 to transform the team’s creative ideas into the building stage by surveying on site, making 3D models for initial discussion and finalised construction issue drawings for the builders.
Here are some of my drawing examples followed by pictures of the outcome illustrating how my drawings worked for their actual building work:
Built in Furniture 3D & 2D Details
Secret fix glazed balustrade & Blind Box/ Pelmet Detail
Bracket Light Location Detail – Dining
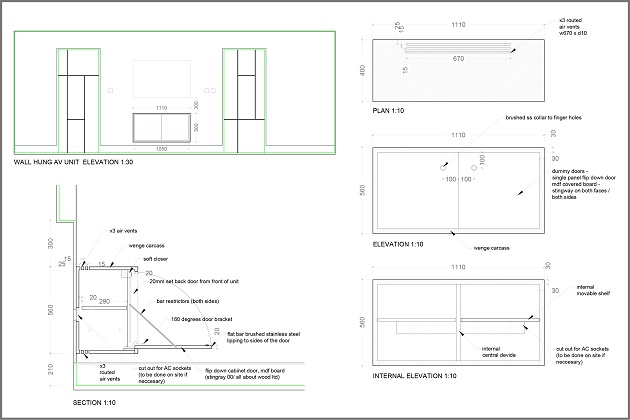
Wall Hung TV Unit Details
Lightwell Slate & Pebbles Floor – Zen Image
It is perhaps true that a CAD technician’s work is not as glamorous when compared to the work of an interior designer, but when the construction work is complete I feel proud and fulfilled by my work which I love very much! :D














Very good information. Lucky me I discovered your website by chance (stumbleupon).
I’ve saved as a favorite for later!
Thank you for your lovely comment Designer pumps :) I am glad that we can probably share artistic information as you are fashion specialist! ^^ Kaoru
I really love your site.. Excellent colors & theme. Did you build this site yourself? Please reply back as I’m attempting to create my very own blog and would love to find out where you got this from or exactly what the theme is called. Many thanks!
Hi IGLU, Thank you for your lovely comment!:) I have visited your blog so you just started…?
My site was prepared by a profesional web designer, Mike
http://fateskimo.co.uk/
and the theme is his suggestion, which is called architekt theme
http://www.dessign.net/architekttheme/
After built up the website by him, I have posted every topic by my self :) Mike is a great designer if you are looking for a specialist. Hope you can get some tips and wishes for your development! I will visit your site too! ^^